/
Aktuality
/

Dokončujeme mobilní dům model Michael, Nemotice

 
Dokončujeme mobilní dům model Michael, Nemotice

Právě dokončujeme novostavbu dřevostavby na okraji obce Nemotice v Jihomoravském kraji. Lokalita nabízí skvělé spojení – Brno je vzdálené 37 minut autem, Vyškov 26 minut a Kyjov pouhých 18 minut. Klidné a přírodní prostředí zaručuje ideální podmínky pro komfortní bydlení i relaxaci.

Domek v Nemoticích – Váš prostor, Vaše volba

Právě dokončujeme novostavbu dřevostavby na okraji obce Nemotice v Jihomoravském kraji. Lokalita nabízí skvělé spojení – Brno je vzdálené 37 minut autem, Vyškov 26 minut a Kyjov pouhých 18 minut. Klidné a přírodní prostředí zaručuje ideální podmínky pro komfortní bydlení i relaxaci.

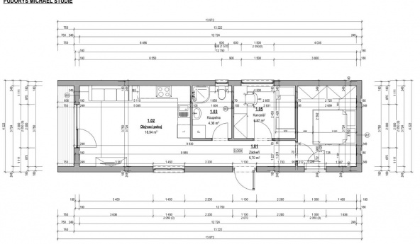
Dispozice a konstrukce

Domek s půdorysem 14 × 4,2 m byl navržen s důrazem na praktičnost, moderní design a nízké provozní náklady. Jeho promyšlená dispozice zahrnuje:
Obývací pokoj s kuchyní a malou krytou terasou, kterou lze snadno rozšířit do zahrady.
Ložnici s dostatkem prostoru pro klidný spánek a úložné řešení.
Další pokoj – ideální jako pracovna, dětský pokoj nebo prostor pro hosty.
Koupelnu s WC vybavenou moderními prvky a úspornými řešeními.

Jedná se o energeticky úspornou přízemní dřevostavbu, která přináší komfortní a ekonomické bydlení.

Pozemek a možnosti využití

Domek stojí na jižně orientovaném svažitém pozemku o velikosti 1 284 m². Terén je upraven tak, aby přirozeně rozšířil obytný prostor, aby byl maximálně variabilní a nabízel různé možnosti využití:

  • Malá krytá terasa plynule přechází do venkovní terasy – ideální místo pro relaxaci.

  • Nad ní je další vyvýšená část pozemku, kam lze umístit pergolu, grilovací kout nebo venkovní posezení.

  • Zhruba 800 m² pozemku jsme ponechali volně k využití, aby si budoucí majitel mohl prostor přizpůsobit podle svých představ.

Jak lze pozemek využít?

  • Pro odpočinek – zahrada, bazén, wellness, jezírko.

  • Pro hospodářské účely – ovocný sad, pěstování vlastních plodin, chov menších zvířat.

  • Pro moderní ekologické bydlení – díky svažitému terénu je pozemek vhodný i pro agrivoltaické hospodaření – kombinaci fotovoltaických panelů a pěstování plodin nebo drobného domácího zvířectva pod nimi, což umožňuje nejen ekologický, ale i finančně výhodný provoz domácnosti.

Váš domov, Vaše rozhodnutí

Domek i pozemek jsme záměrně nechali v určitém stupni rozpracování, aby měl budoucí majitel možnost dotvořit si ho podle svých představ. Pokud bychom vše kompletně dokončili, mohlo by se stát, že by některé úpravy neodpovídaly vašemu vkusu a bylo by nutné je předělávat – což znamená zbytečné náklady.

Díky této flexibilitě se může dům stát útulným domovem, ekologickou soběstačnou jednotkou nebo místem pro relaxaci – přesně tak, jak si přejete.

 






HomeO nás Služby Vize Aktuality Kontakty




© 2025 Garnet Investment, a.s.,  All Rights Reserved.

 

Developed by 5Q


Cookies
Webové stránky používají cookies, díky kterým je prohlížení stránek příjemnější a snazší. Ke zpracování některých cookies potřebujeme od vás souhlas, který dáte kliknutím na "Přijmout vše", nebo nastavte jednotlivě v "Nastavení souborů cookie“. Více informací najdete zde.

Odmítnout vše     Nastavení cookie     Přijmout vše